在创作空间设计时,要掌握以下几个方面的思维和技巧。以餐饮空间设计为例,需要考虑到从空间动线、色彩、材质、到灯光等一系列问题。
# 空间动线
空间动线,通俗来讲就是平面布局,在餐饮空间设计中是重中之重。
平面布局远远不只要求完成空间分布,而是要解决餐饮空间设计整体的经营区域比例问题,包括前台,大厅,后厨,卫生间、库房等多个功能区域的比例关系。
一个良好的餐饮空间设计的动线布局,要考虑到包括用户进店到落座所经区域,服务员的送餐、收餐路线,厨师的操作半径,收银及等位区域等的设置。
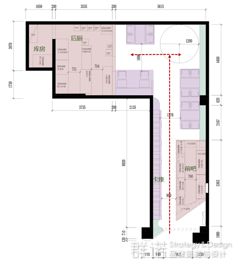
餐饮空间设计动线参考图
一个好的餐饮空间设计,应通过梳理消费者的用餐环节,给出让食客获得舒适用餐体验的合理空间布局。
这样的餐饮空间设计不仅有助于留存客户、提高效率,更能最大化利用空间,从而帮助企业在不变甚至有限的空间资源下,获得最高的经济效益。
# 色彩
餐饮空间设计中的色彩,需要根据品牌特性和消费人群来进行分析和调整。
比如快餐类,一般都会采用高饱和高对比的色彩;而火锅类,一般都会采用带有强烈品类属性的红色,能第一时间向消费者传达品类信息;在中餐餐饮中,色彩应用就较平缓,多用一些木作、相对中式的色调。
快餐类餐饮空间设计色彩应用
# 灯光
在餐饮空间设计中,需要把握的是:不同的灯光会营造出完全不同的心理感受。
餐饮空间设计灯光分析图
拿酒吧来举例,研究表明,在暗环境的氛围中,客人的购酒量会比明亮环境增加40%,因此酒吧灯光整体平均照度往往在300LM以下。
而快餐类空间则需要保持整体平均照度800LM左右,营造宽敞明亮,舒适整洁的用餐氛围。
酒吧类餐饮空间设计灯光应用
# 材质
餐饮空间设计,除开定位高端或定位重型中餐的品牌,一般都考虑在3-5年需要进行形象升级和产业调整,所以一般不建议使用特别高端的材料。这样便于控制投资额度,缩短回本周期,帮助企业早日进入盈利期。
餐饮空间设计实际的材质运用,事实上也是根据品牌定位来确定。比如火锅类餐饮空间的材料使用往往会更接地气一些,因此砖、水泥等粗犷材质使用更多。
火锅类餐饮空间设计材质应用
不仅是餐饮空间设计,所有空间设计都应该遵从以上规律,才能有效提高空间的有效性和实用性。

